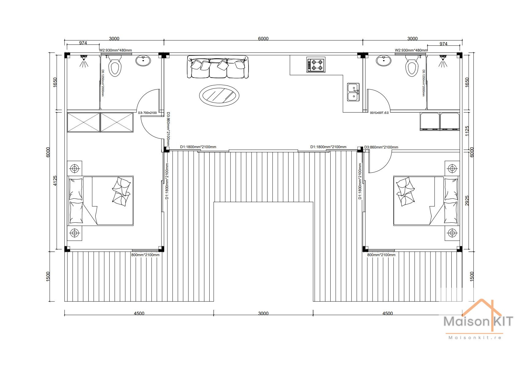
Le Badamier 53,5 m² + TERRASSES = 31,5 m²
Soumettre une demande de devis
🏡 MAISON « LE BADAMIER 52287€
Matériau : Conteneur – ossature métallique
Normes : ISO/CE
Isolation : Fibre de verre/laine de roche/PU
Caractéristiques : Économie d’énergie/Assemblage rapide
Toiture: Isolation en laine de verre
Surface habitable intérieure (SH)
-
Séjour / cuisine : ≈ 25 m²
-
Chambre 1 : ≈ 12,4 m²
-
Chambre 2 : ≈ 12,4 m²
-
Salle d’eau 1 : ≈ 1,85 m²
-
Salle d’eau 2 : ≈ 1,85 m²
👉 Surface habitable totale ≈ 53,5 m²
Surface TOTAL de la TERRASSES = 31,5 m²
Description détaillée des espaces et dimensions
- 1 espace jour central (séjour / cuisine)
- 2 chambres indépendantes
- 2 salles d’eau avec WC
- 1 grande terrasse centrale + terrasses devant chambres
🛋️ ESPACE DE VIE – SÉJOUR / CUISINE
Séjour – Salon
- Largeur : 6 000 mm
- Profondeur : env. 4 125 mm
- Surface estimée : ~24,7 m²
Description :
- Pièce centrale et traversante
- Grande ouverture sur la terrasse centrale par baie vitrée coulissante 1 800 × 2 100 mm
Cuisine ouverte
- Implantation linéaire
- Longueur de mur cuisine : env. 3 000 mm
Équipements possibles :
- évier double
- plaque de cuisson
- rangements bas et hauts
- plan de travail continu
👉 Cuisine directement connectée au séjour et à la terrasse pour repas extérieurs.
🛏️ CHAMBRE 1 (Gauche)
- Dimensions :
- Largeur : env. 3 000 mm
- Profondeur : env. 4 125 mm
- Surface estimée : ~12,4 m²
Description :
- Chambre confortable
- Accès direct à la terrasse par porte 800 × 2 100 mm
- Espace suffisant pour :
- lit double
- tables de chevet
- rangement / placard
🚿 SALLE D’EAU 1 (attenante chambre gauche)
- Largeur : env. 1 650 mm
- Profondeur : env. 1 125 mm
- Surface : ~1,85 m²
Équipements :
- Douche
- WC
- Vasque
- Fenêtre 930 × 480 mm (aération naturelle)
🛏️ CHAMBRE 2 (Droite – symétrique)
- Dimensions identiques à la chambre 1
- Largeur : 3 000 mm
- Profondeur : 4 125 mm
- Surface estimée : ~12,4 m²
Description :
- Accès indépendant
- Très bonne intimité
- Porte donnant sur terrasse bois
🚿 SALLE D’EAU 2 (attenante chambre droite)
- Dimensions identiques
- 1 650 × 1 125 mm
- WC + douche + vasque
- Fenêtre pour ventilation naturelle
🌿 TERRASSE CENTRALE
Terrasse centrale bois
- Largeur : env. 3 000 mm
- Longueur : env. 6 000 mm
- Surface estimée : ~18 m²
Description :
- Véritable pièce de vie extérieure
- Accessible depuis :
- séjour
- chambre gauche
- chambre droite
- Idéale pour :
- coin repas extérieur
- salon jardin
- circulation protégée
Terrasses devant chambres
- Profondeur : env. 1 500 mm
- Largeur : env. 4 500 mm
- Surface par terrasse : ~6,75 m²
✅ SURFACES
- Séjour / cuisine : ~25 m²
- Chambres (x2) : ~25 m²
- Salles d’eau (x2) : ~3,7 m²
- Terrasses totales : ~31 m²
Non inclus dans notre offre :
-
Démarches administratives (permis de construire, déclaration préalable).
-
Montage et installation du modulaire.
-
Fourniture et pose des pilotis ou fondations.
-
Raccordements aux réseaux (eau, électricité, assainissement).
-
En option (sur demande) :
-
Toiture avec finition spécifique
-
Terrasse extérieure (bois, composite, acier…).
-
Volets roulants manuels ou motorisés.
-










Avis
Il n’y a pas encore d’avis.